- 価格
- 1,980万円
- 種別
- 中古戸建
- 間取
- 3LDK
-
- 所在地
- 静岡県下田市河内719番地2
- 交通
- 伊豆急行 蓮台寺駅 徒歩700m 徒歩9分
バス( 乗1分 停歩9分)
物件詳細
| 築年月 | 1994/08 | 新築/中古 | 中古 |
|---|---|---|---|
| 面積 | 139.12m² | 計測方式 | |
| バルコニー | 向き | ||
| 建物階数 | 地上1階 | 部屋階数 | |
| 建物構造 | 木造 | ||
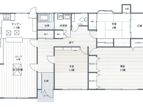
| 間取内容 |
和室6畳 洋室15畳 洋室10畳 LDK16畳 |
||
| 駐車場 | 空有 | 取引態様 | その他 |
| 引渡/入居時期 | 相談 | 現況 | 空家 |
| 地目 | 宅地 | 用途地域 | 第二種中高層住居専用 |
| 都市計画 | 非線引き区域 | 地勢 | 平坦 |
| 土地面積 | 985.11m² | 土地面積計測方式 | 公簿 |
| 建ぺい率 | 60% | 容積率 | 150% |
| 土地権利 | 所有権 | 接道状況 | 二方(除角地) |
| 接道方向1 | 北東 | 接道間口1 | |
| 接道方向2 | 北西 | 接道間口2 | |
| 周辺環境 |
稲生沢小 下田中学校 |
||
| 設備・条件 | 公営水道・プロパンガス・個別浄化槽・東京電力 |
||
| 物件番号 | no-374 | ||

静岡県下田市河内地区の閑静な住宅地に佇む、敷地広々約297坪の平坦地に建つ大型3LDK中古住宅のご紹介です。
周囲は落ち着いた住環境で、陽当たり・風通しともに良好。ゆとりある敷地と間取りが魅力の一邸です。
建物は平家建て・木造瓦葺。室内は開放感のあるLDを中心に、10帖の洋室、6帖の和室、ゆとりある居室配置で、ファミリーはもちろん、セカンドハウスや移住用住宅としてもおすすめです。
水まわり(キッチン・浴室・トイレ)もそれぞれ独立しており、生活動線の良さもポイントです。
敷地が広いため、庭づくり・家庭菜園・趣味スペースなど多目的に活用可能。駐車スペースも確保されています。
空家のため、引渡し時期についてもご相談いただけます。
伊豆急行線「蓮台寺駅」まで約700m、生活利便性と静かな住環境を兼ね備えた立地。
自然に囲まれた下田エリアで、ゆとりある暮らしをお考えの方にぜひご覧いただきたい物件です。
物件のおすすめポイント
-
敷地約297坪の広々とした平坦地
-
ゆとりある大型3LDK・平家建て
-
閑静な住宅地で住環境良好
-
陽当たり・通風良好
-
駐車場あり
-
家庭菜園・庭づくりも可能
【注意】
・南東側道路より本物件に進入する場合は、河川占用許可が必要です。(河川占用料 年額1,200円)
・公簿売買とし、境界非明示及び現況有姿渡し
・22条区域、市景観条例、県条例、宅造等工事規制区域
水関連施設における ろ過システム・昇温システム・循環システムの販売
家庭用から大型宿泊施設まで幅広い分野で、ろ過システムを始めとするお風呂やプールなどの水関連施設における大切な水資源を、より有効に活用することを可能にします。
環境への配慮と共に清潔・節約・水質向上を実現する現場の条件に合わせた最適な循環システム(ろ過装置)をご提案いたします。
環境への配慮と共に清潔・節約・水質向上を実現する現場の条件に合わせた最適な循環システム(ろ過装置)をご提案いたします。
Loading...
※物件掲載内容と現況に相違がある場合は現況を優先と致します。






























